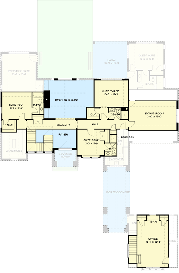
This two-story Transitional plan covers 4,358 heated square feet, laid out for everyday comfort and easy hosting. The plan includes 5 bedrooms and 4 full baths, plus a 3-car attached garage with front, rear entry. The footprint measures roughly 78' 10" wide by 101' 10" deep, with 10' ceilings on the main level.
The floor plan keeps traffic sensible and storage close at hand, with room to expand how you use each space over time. Outdoor living extends the home with a 253 sq. ft. lanai. Construction specs call for a crawl foundation, a primary roof pitch of 16 on 12, and 2x6 exterior walls. HRP can tailor this plan to your homesite, your selections, and any layout refinements you want to explore before framing begins.


| Category | Sq ft |
|---|---|
| Heated & cooled | 4,358 |
| Garage | 869 |
| Lanai | 253 |
| Total gross sq ft | 5,480 |