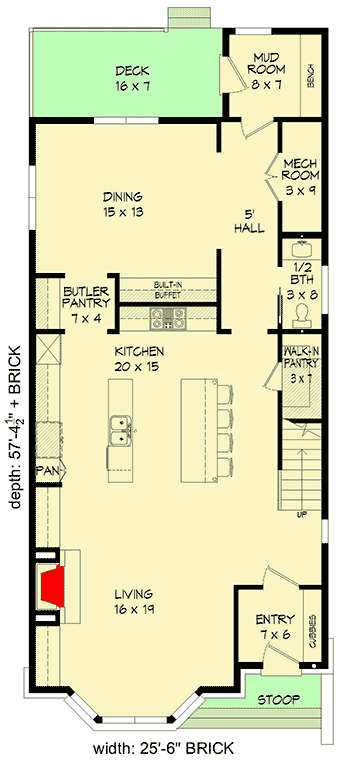
Spanning 3,321 heated square feet, this three-story Transitional home puts the main living areas within easy reach of the kitchen and outdoor spaces. The plan includes 3 bedrooms and 3 full baths and 1 half bath. The footprint measures roughly 25' 6" wide by 57' 5" deep, with 9' ceilings on the main level.
The interior is arranged for flexible use, whether you're hosting or settling in for a quiet night. Outdoor living extends the home with a 145 sq. ft. deck. Construction specs call for a crawl foundation and 2x6 exterior walls. HRP builds each plan to suit the buyer's site and selections, so finishes, structural options, and layout refinements are all on the table.



| Category | Sq ft |
|---|---|
| Heated & cooled | 3,321 |
| Total gross sq ft | 3,321 |