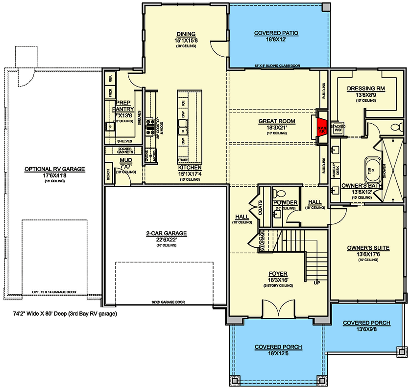
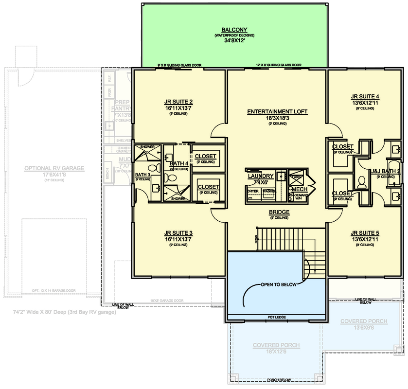
At 4,032 heated square feet, this two-story Modern plan balances open shared rooms with quiet, private zones for rest and work. The plan includes 5 bedrooms and 4 full baths and 1 half bath. The footprint measures roughly 56' 0" wide by 80' 0" deep, with 10' 1" ceilings on the main level.
Inside, the layout supports both daily routines and relaxed entertaining. Outdoor living extends the home with a 354 sq. ft. front porch, a 224 sq. ft. patio, a 224 sq. ft. covered patio, and a 416 sq. ft. veranda. Construction specs call for a slab foundation, truss-framed construction, a primary roof pitch of 3 on 12, and 2x6 exterior walls. As with every HRP plan, this one can be tailored to your specific lot and personal selections across finishes, fixtures, and floor-plan adjustments.


| Category | Sq ft |
|---|---|
| Heated & cooled | 4,032 |
| Front porch | 354 |
| Patio | 224 |
| Covered patio | 224 |
| Veranda | 416 |
| Total gross sq ft | 5,250 |